Családbarát Otthon, jó közlekedéssel A+++

Alapadatok

Alapterület

210 m2

Telek terület

798 m2

Erkély

40 m2

Építés éve

2000

Fűtés

gázkazán, padlófűtés, hűtő-fűtő klíma

Energetikai tanúsítvány

A++++

Szobák száma

5 szoba + 2 félszoba

Eladó családi ház 159 MFt Szentendre

Leírás és extrák

Kizárólagos megbízás - Rendkívül jó áron


Szentendrén családi házas övezetben Dunához, óvároshoz közel, kiváló közlekedéssel, esztétikai és műszaki szempontból is modern, energiatakarékos házat ajánlunk. A ház 2000-ben épült, 2021-ben korszerűsítették, tavaly napelem rendszert telepítettek. ELEKTROMOS ERŐMŰNEK MONDTA AZ ENERGETIKUS. Még ad el áramot az ELMŰ-nek, hatalmas a teljesítménye. Nyeresége lesz.

Olyan érzés itt élni, mintha mindig nyaralna az ember.


Gyermekes családoknak ideális. Bölcsőde, bolt, gyógyszertár, a Dunapart és a játszótér sétatávolságban található.

A házban az amerikai konyhás, kertkapcsolatos nappaliból a délnyugati tájolású, tágas fedett teraszra és a kertbe jutunk.

A földszinten található a szülői háló gardróbbal és privát fürdőszobával, mosókonyha, beépített bútorok.

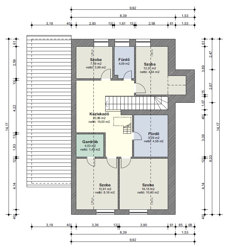
A bejáratnál lépcső vezet az emeleti kisebb nappaliba, melyből 4 szoba és 2 fürdőszoba nyílik. Innen lépcsőn lehet felmenni egy további kuckós szobába.



Extrák: gépesített konyhabútor, napelem, elektromos kapuk, locsoló rendszer, klíma, riasztó, kamerás kaputelefon, ujjlenyomatos bejárati ajtó, 2 autónak fedett és egy felszíni beálló.

Közlekedés: 2 perc séta az Újpest városkapuig közlekedő busz megállója, ami érinti a HÉV végállomást.
Csendes és rendezett környék, sík, aszfaltos úton könnyen megközelíthető. 



Perfect Homes - OTTHONT ADUNK

Ha különleges otthont keresel, a Perfect Homes kínálatában megtalálod.
Kizárólagos megbízásainknak köszönhetően ez az ingatlan csak nálunk található meg. 
Hívj minket, ha szeretnéd értékesítés előtt felkészíteni, különlegessé varázsolni a mostani otthonod!


SZAKÉRTŐ CSAPATUNK SZOLGÁLTATÁSAI:


- értékesítés
- Home Staging (lakásfelkészítés)

- értékbecslés 

- energetikai tanúsítás készítése

- ügyvédi háttér
- lakberendezési tanácsadás

- Fundamenta ügyintézés

- hitelügyintézés

- tervezés, generál kivitelezés

- fotó és videó készítés

- költöztetés
- kertépítés, kertgondozás

Ha a múltbéli kínálatunkat szeretnéd megtekinteni, a Facebook oldalunkon eléred.


KAPCSOLATI ŰRLAP

Kérdése van? Írja meg nekünk!